Werbung

Barrierefreiheit: Zentraler Punkt bei jeder Badplanung

Sanitärräume hindernisfrei und nutzergerecht ausstatten in einer älter werdenden Gesellschaft

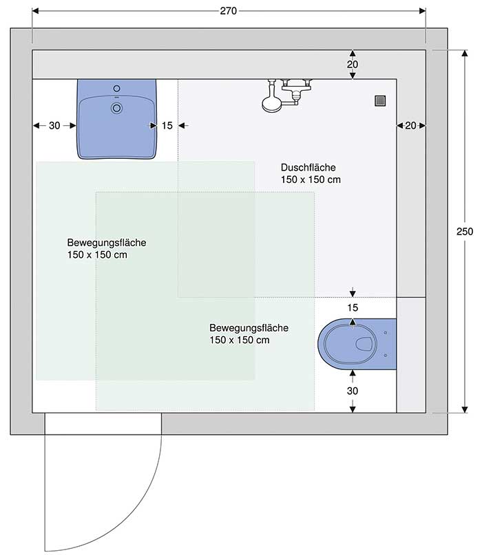
Überschneidende Bewegungsflächen in einem seniorengerechten Bad mit Dusche nach DIN 18040-2.

Überschneidende Bewegungsflächen in einem rollstuhlgerechten Bad mit Dusche nach DIN 18040-2.

Montageelemente fürs WC mit Montageplatten für Stützklappgriffe und nachträglich höhenverstellbarer Keramik-Aufhängung lassen sich jederzeit an Bewegungseinschränkungen anpassen.

Waschtisch mit seitlichen Haltegriffen und Unterputz-Siphon für mehr Beinfreiheit.

Rutschfeste Duschflächen bieten leicht zu installierende Lösungen für barrierefreie Duschbereiche.

Mit der richtigen Vorbereitung hinter der Wand lassen sich Haltesysteme und Duschklappsitze sehr einfach nachinstallieren.

Rollstuhlgerechtes WC mit vergrößerter Ausladung.

Waschtisch-Unterschrank mit zurückgesetzten Regalböden für mehr Beinfreiheit im Sitzen.

Badewanne mit integrierten Haltegriffen und seitlicher Sitzfläche für Pflegepersonen.

 

Die Lebenserwartung der Deutschen steigt immer weiter. Dies erfordert Maßnahmen, um Menschen mit Einschränkungen ein hohes Maß an Autonomie zu ermöglichen. Eine wesentliche Rolle spielt dabei das Bad als Ort für die tägliche Körperpflege und Hygiene. Immer öfter wird das private Bad auch zum Arbeitsplatz für ambulante Pflegekräfte.

Artikel weiterlesen auf IKZ-select (BASIC-Inhalt, kostenfrei nach Registrierung)

 


Artikel teilen:
Weitere Tags zu diesem Thema: