Werbung

Installationsarten im Vergleich

Auswahlkriterien für die Planung und Ausführung einer hygienisch optimalen Trinkwasserinstallation in der Stockwerksverteilung

Das Durch­schleifen mithilfe von sogenannten U-Wandscheiben bei der Installation von Trinkwasserleitungen kommt im Zuge ­hygienisch opti­mierter Stockwerksinstallationen immer häufiger zum Einsatz.

Tabelle 1: Hygienisch relevante Kennwerte der Installationsarten für das Beispielbad.

Bild 1: Typischer Grundriss im Mehrfamilienhaus. Ein Bad mit angrenzender Küche. In diesem Beispiel kommt die T-Stück-Installation zum Einsatz. Aus hygienischer Sicht nicht immer die optimale Lösung.

Bild 2: Durchschleif-Reiheninstallationen sollten eher bei einer geringen Anzahl von Zapfstellen und einer möglichst genauen Definition der Hauptverbraucher eingesetzt werden.

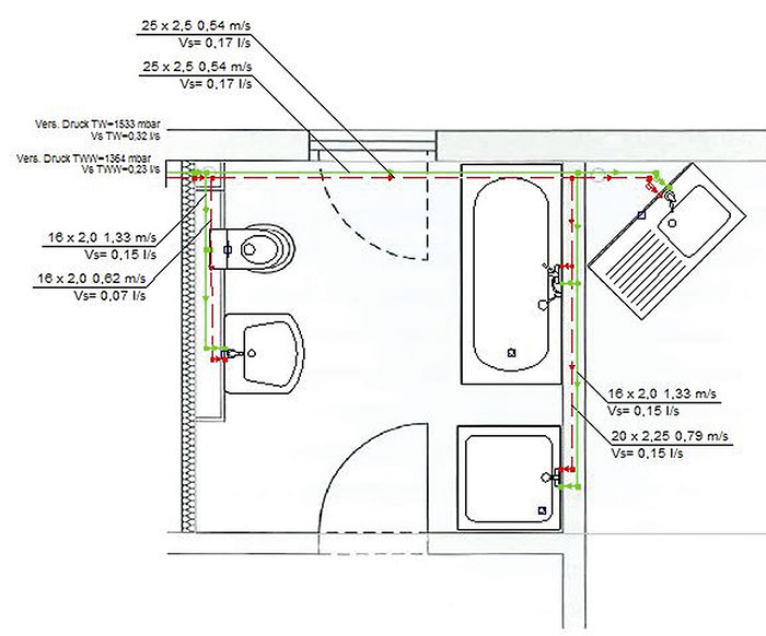
Bild 3: Der häufig geäußerte Vorbehalt gegenüber Ringleitungsinstallationen, dass diese den Wasserinhalt in der Stockwerksleitung auf über 3 l erhöhen und damit das Einschleifen der Zirkulation notwendig wird, ist bei näherer Betrachtung falsch.

Matthias Hemmersbach.

 

Aus hygienischer Sicht ist es empfehlenswert, die Anbindung von Trinkwasseranschlüssen in der Stockwerksverteilung mittels Durchschleif-Wandscheiben auszuführen. Mit den durchströmten U-Wandscheiben oder U-Unterputz-Armaturenanschlüssen kann einer Stagnation des Trinkwassers vorgebeugt werden. Wie sich eine Reihen- oder Ringinstallation im Vergleich zur traditionellen T-Stück-Installation auf den Wasseraustausch und -inhalt oder die Einhaltung von Komfortkriterien auswirkt, beleuchtet dieser Artikel.

Das Durchschleifen mithilfe von U-Wandscheiben bei der Installation von Trinkwasserleitungen wird im Zuge hygienisch optimierter Stockwerksinstallationen immer häufiger angewendet. Doch neben der Durchschleif-Reihen- und Durchschleif-Ringinstallation wird auch noch immer die herkömmliche T-Stück-Installation eingesetzt. Alle genannten Installationsarten haben naturgemäß Vor- und Nachteile, die es bei der Planung für die verschiedenen Nutzungsverhältnisse zu berücksichtigen gilt. Die nachfolgenden Ausführungen sollen bei der Auswahl der optimalen Installationsart, auch im Hinblick auf die Erfüllung der Schutzziele der VDI-Richtlinie 6023 sowie die Komfortkriterien der VDI-Richtlinie 6003, helfen.
Die Vermeidung von überdimensionierten Trinkwasserinstallationen ist eines der Hauptziele der DIN 1988-300. Die Absenkung der Spitzenvolumenströme sowie die Verwendung produktspezifischer Mindestfließdrücke und Druckverlustbeiwerte sollen dazu beitragen, dass der Wasseraustausch optimiert und das Trinkwassersys­tem weniger stagnationsanfällig wird. Die Forderung nach schlankeren Rohrnetzen fand auch in anderen technischen Regelwerken ihren Niederschlag. So beispielsweise in der VDI-Richtlinie 6023 – Hygiene in Trinkwasserinstallationen. Darin heißt es: „Überdimensionierungen sind sowohl bei Trinkwasserleitungen als auch bei Trinkwasserspeichern und Apparaten zu vermeiden.“ Neben der Frage der Dimensionierung treten aber noch zwei weitere Hygieneaspekte in den Vordergrund: der optimale Wasseraustausch zur Vermeidung von Stagnation als größtes Verkeimungsrisiko in einer Trinkwasserinstallation sowie die Temperaturhaltung für Kalt- und Warmwasser.
Wie diese Ziele konkret erreichbar sind, sagt die VDI-Richtlinie 6023 zwar nicht. Allerdings können die Auswahl der Installationsart und die Dimensionierung in Anlehnung an die Forderungen auf die folgenden Punkte heruntergebrochen werden:
a)    Druckverluste reduzieren und damit
b)    kleinere Rohrdurchmesser und Wasservolumen ermöglichen
c)    sicher für den Wasseraustausch in allen Leitungsteilen sorgen und
d)    die Temperaturhaltung in Kalt- und Warmwasser sicherstellen.

Druckverlust und Rohrdimensionierung
Bei der Druckverlustoptimierung zeigt sich, dass die alleinige Fokussierung auf Zeta-Werte einzelner Installationssysteme nicht zu dem Ziel führt, optimale Rahmenbedingungen für einen häufigen Wasseraustausch zu schaffen. Das größere Optimierungspotenzial liegt stattdessen in der Auswahl einer geeigneten Installationsart.

Temperaturhaltung
Bei der Temperaturhaltung in Trinkwassersystemen sollte – neben der normgerechten Dämmung – die thermische Trennung von kalt- und warmgehenden Leitungen besonders beachtet werden. Auch die Dimensionierung und damit das Warmwasservolumen spielen dabei wieder eine bedeutende Rolle. Entsprechend DVGW-Arbeitsblatt W 551 sind Warmwasser-Stockwerks- und Einzelzuleitungen (Fließwege) mit einem Wasservolumen > 3 l mit einer Zirkulation bis zur Entnahmestelle auszustatten. Diese Forderung gilt der Temperaturhaltung innerhalb der Warmwasserleitungen, stellt aber für die Installation neue Probleme im Kaltwasserbereich dar. So erwärmen sich beispielsweise die Hohlräume einer Vorwand­installation. Beim „Durchschleifen“ der Zirkulation kommt es sogar zur Erwärmung der kaltwasserführenden Armaturenteile.

Komfortkriterien
Dazu gilt es, die vertraglich zu vereinbarenden Komfortkriterien für die Warmwasserbereitstellung – entsprechend der VDI-Richtlinie 6003 – zu berücksichtigen. Wichtigster Punkt: Welche Auswirkungen haben die einzelnen Installationsarten auf die Ausstoßzeiten für Warmwasser? Unter diesen Gesichtspunkten wurden drei Installationsarten beispielhaft am typischen Grundriss eines Mehrfamilienhauses mit einem Bad (Vollausstattung) und benachbarter Küche dargestellt.

Aufbau der Installationsvarianten
Für das in den Bildern 1 bis 3 gezeigte Bad mit angrenzender Küche wurde die Warmwasserinstallation jeweils als T-Stück-, Durchschleif-Reihen- sowie als Durchschleif-Ringinstallation nach DIN 1988-300 dimensioniert. Für alle Stockwerksinstallationen liegt der gleiche Druck an den Stockwerksabsperrungen an. Damit können die Ergebnisse direkt miteinander verglichen werden.
Als ungünstigster Fließweg in der Installation ergibt sich die Dusche. Für deren Nutzung sollen die Auswirkungen der einzelnen Installationsarten verglichen werden.

T-Stück-Installation
Häufig kommt heute immer noch die T-Stück-Installation zum Einsatz (Bild 1). Hier dürften wohl die vordergründig günstigeren Kosten und die bekannte und bewährte Verarbeitungsmethode eine große Rolle spielen. Nachteilig bei dieser Installationsart ist vor allem, dass Teile der Installation nicht durchströmt werden, obwohl Wasser gezapft wird. In größeren Installationen (> 3 l bis zum ungünstigsten Fließweg), in denen die Zirkulation gem. DVGW-Arbeitsblatt W 551 bis zur letzten Entnahmestelle geführt werden muss, stellen diese stagnierenden Rohrleitungsteile ein erhöhtes Verkeimungsrisiko dar. Die Zirkulationsleitung fördert dauerhaft Trinkwasser im Temperaturbereich von 58 bis 60 °C und erwärmt die stagnierende Kaltwasserleitung in der System-Vorwand oder in der Trockenbauwand.

Durchschleif-Reiheninstallation
Sinnvollerweise sollte bei dieser Installationsart (Bild 2) der Hauptverbraucher immer am Strangende angeschlossen werden, um einen größtmöglichen Wasseraustausch zu gewährleisten. Dies ist für die Kaltwasserinstallation das WC und für die Warmwasserinstallation der Waschtisch. In unmittelbarer Nähe zum WC liegt in den meisten Fällen die Abwasser-Fallleitung, um die sichere Entwässerung zu ermöglichen. In diesem Versorgungsschacht finden sich deshalb auch die Trinkwasserleitungen, sodass die Installation vom Schacht ausgehend zunächst die Küchenspüle, Badewanne und Dusche über entsprechende Durchschleif-Wandscheiben erschließt, bevor die Leitung an den Waschtisch und abschließend an den Hauptverbraucher (WC) angeschlossen wird.
Die Reiheninstallation ermöglicht den kompletten Warmwasseraustausch allerdings nur dann, wenn die Mischbatterie am Waschtisch regelmäßig für längere Zeit betätigt wird. Wird, wie im dargestellten Fall, lediglich die Duscharmatur betätigt, werden erhebliche Rohrnetzteile nicht durchströmt. Besonders nachteilig wirkt sich hier die hohe Wassermenge aus, die > 3 l liegt und daher ein Einschleifen der Zirkulation erforderlich macht. Dies bringt weitere Nachteile mit sich, da für eine thermische Entkopplung der kalt- und warmgehenden Leitungen gesorgt werden muss, um eine Verkeimung der Installation durch Erwärmung von Kaltwasser über 25 °C zu vermeiden. Hinzu kommt, dass die Reihenschaltung der U-Wandscheiben einen hohen Druckverlust verursacht und damit beim vorgegebenen Druck eingangsseitig größere Rohrdimensionen erforderlich werden (32 x 3,2 mm). Durchschleif-Reiheninstallationen sollten daher eher bei einer geringen Anzahl von Zapfstellen und einer möglichst genauen Definition der Hauptverbraucher eingesetzt werden.

Durchschleif-Ringinstallation
Eine Alternative zur gezeigten Reiheninstallation ist die Ringinstallation. Wie Bild 3 zeigt, liegt das WC als Kaltwasser-Hauptverbraucher direkt neben dem Einspeisepunkt der Kaltwasserinstallation. Mit einem T-Stück, etwa 0,5 m Rohr und einer Durchschleif-Wandscheibe lässt sich der Ring auf einfache Weise schließen. Die Aufteilung des Volumenstroms auf zwei Leitungen bringt gegenüber der Durchschleif-Reiheninstallationen deutliche hydraulische und damit hygienische Vorteile.
Die Parallelschaltung von Widerständen im Rohrnetz und die Aufteilung des Volumenstroms auf zwei Fließwege führen zu einer Druckverlust- und Hygieneoptimierung und zur Minimierung des Rohrinhaltes der Installation. Der Warmwasserinhalt liegt insgesamt deutlich unter 3 l. Damit kann mit dieser Installationsart selbst bei der hier gezeigten Vollausstattung ein Einschleifen der Zirkulationsleitung vermieden werden.
Der häufig geäußerte Vorbehalt gegenüber Ringleitungsinstallationen, dass diese den Wasserinhalt in der Stockwerksleitung auf über 3 Liter erhöhen und damit das Einschleifen der Zirkulation erst notwendig wird, ist bei näherer Betrachtung falsch. Und wie die Berechnung der Ausstoßzeiten gemäß der VDI Richtlinie 6003 zeigt, ergeben sich gegenüber der T-Stück-Installation und der Durchschleif-Reiheninstallation keine signifikanten Änderungen. Die Komfortkriterien werden auch mit der Durchschleif-Ringinstallation erfüllt.

Fazit
Dass sich das Wasservolumen in der Stockwerks-Ringleitung aufgrund geringerer Druckverluste und kleinerer Rohrdimensionen gegenüber der Reiheninstallation in der Etage verringert, kann an diesen konkreten Beispielen belegt werden. Das gilt insbesondere auch im Vergleich zur T-Stück-Installation. Das Ziel einer Rohrnetzprojektierung sollte deshalb immer sein, durch kleinstmöglich dimensionierte Ringleitungen das Wasservolumen möglichst gering zu halten. Ein weiterer wichtiger Vorteil der Ringinstallation liegt in der Flexibilität der Nutzung. Das Warmwasservolumen wird immer voll ausgetauscht, egal welche Warmwasser-Armatur betä­tigt wird. Es gibt keinerlei Stagnationszonen, sodass hier das geringste Verkeimungsrisiko besteht. Die Durchschleif-Ringinstallation entspricht damit den Anforderungen der VDI 6023 nach geringen Wasserinhalten und einem möglichst guten Wasseraustausch. Daneben kann das Einschleifen von Zirkulationsleitungen, und damit eine Erwärmung von Kaltwasserleitungen durch parallel laufende Zirkulationsleitungen, vermieden werden.

Autor: Dipl.-Ing. Matthias Hemmersbach, Area Application Manager CE bei der Uponor GmbH

Bilder: Uponor, Haßfurt

www.uponor.de

 

Nachgefragt

IKZ-FACHPLANER: Das Durchschleifen von Trinkwasserleitungen bei Stockwerksinstallationen wird von Herstellerseite immer häufiger propagiert. Mitunter sogar für Wohnbauten mit regelmäßiger Nutzung. Ist diese Forderung nicht ein wenig überzogen?
Matthias Hemmersbach: Regelmäßig genutzt heißt leider nicht, dass keine Stagnationszonen vorhanden sind, wenn auf herkömmliche Art und Weise mit T-Stücken und Einzelanschlüssen installiert wird. Denken Sie an Badewannen, die sicher deutlich weniger genutzt werden als Duschen oder Waschbecken. Auch haben wir in der Regel während der Bau- und Planungsphase keinerlei Hinweis, wie die einzelnen Zapfstellen in den folgenden Jahren genutzt werden. Eine junge Familie mit zwei Kindern nutzt die sanitären Einrichtungen sicher anders als ein pflegebedürftiger, alleinstehender Rentner, dessen Installation in der Wohnung darüber aber exakt gleich gebaut wurde. In Ring­installationen mit Durchschleif-Fittings dagegen ist es völlig gleichgültig, welche Armaturen oder Zapfstellen häufig, wenig oder gar nicht benutzt werden. Alle Installationsteile werden bei Betätigung einer Armatur komplett durchspült. Das bringt nicht nur Sicherheit für den Installateur und Eigentümer des Wohngebäudes, sondern vor allem für den Mieter und Nutzer.

IKZ-FACHPLANER: Bei genauer Betrachtung offenbart die gängige Durchschleif-Reiheninstallation aus hygienischer Sicht mehr Nachteile als Vorteile: Der große Wasserinhalt macht eine Zirkulation mitunter auch im Stockwerk notwendig. Beim Einsatz von Durchgangswandscheiben besteht die Gefahr einer gegenseitigen thermischen Beeinflussung von kalt- und warmgehenden Leitungen. Bei klassischen Modernisierungsmaßnahmen sind überdies in der Regel Vorwandinstallationen notwendig oder es müssen größere Aussparungen für das Rohrsystem geschaffen – gestemmt – werden. Das spricht doch unterm Strich eher für eine traditionelle T-Stück-Installation?
Matthias Hemmersbach: Nein. Aus unserer Sicht spricht heute aus Sicht der Trinkwasserhygiene eigentlich nichts mehr für eine T-Stück-Installation. Richtig ist aber, dass man sich in der Planung Gedanken machen muss, ob eine Durchschleif-Reiheninstallation aufgrund der von Ihnen genannten Gründe noch sinnvoll ist oder ob eine Durchschleif-Ringinstallation nicht die viel bessere Wahl darstellt. Kriterien sind dabei sicher die 3-Liter-Regel und das Einschleifen der Zirkulation im Stockwerk, das aus unserer Sicht kontraproduktiv ist, weil es die Probleme der Temperaturhaltung eigentlich nur von der Warmwasser- auf die Kaltwasserseite verlagert. Wie im Artikel gezeigt, kann dies mit kleinstmöglich dimensionierten Ringinstallationen, die noch dazu deutlich weniger Druckverlust erzeugen, sehr gut gelöst werden. Es spricht aber nichts gegen kleinere Durchschleif-Reiheninstallationen, z. B. bei der Kaltwasserleitung eines Gäste-WC’s.

IKZ-FACHPLANER: Aus hygienischer Sicht empfehlen Sie die Ringinstallation im Stockwerk. Auch hierbei erscheint eine Verlegung in der Vorwand notwendig. Unabhängig davon: Worauf ist bei der Planung eines Ringes zu achten?
Matthias Hemmersbach: Durchschleif-Ringinstallationen sind gegenüber Verkeimung im Vergleich aller Installationsarten zunächst einmal am wenigsten anfällig, weil es unabhängig von der Nutzung einzelner Zapfstellen keine Stagnationszonen gibt. Sie sind sozusagen „eigensicher“ und stellen damit schon eine sehr wirksame Vorbeugungsmaßnahme dar. Während bei anderen Installationsarten in der Planung eine Vorab-Festlegung von Hauptverbrauchern am Ende der Installation erfolgen muss, ist dies für die Planung von Ringinstallationen unerheblich. Wir empfehlen für die Planung den Einsatz einer Software, die Ringleitungen nach dem Hardy-Cross-Verfahren berechnen kann. Neben der Dimensionierung des Rohrdurchmessers sollte – wie in der Uponor-HSE-Software – auch eine Simulation von Zapfvorgängen möglich sein, um die Durchströmung im Zweifelsfall auch für Einzelentnahmen überprüfen zu können. Die Verwendung einer Planungssoftware ermöglicht Planern und Installateuren die volle Kontrolle über die trinkwasserhygienisch relevanten Strömungsbedingungen in der Installation.
Übrigens sehen wir Vorwand-Installationen heute auf fast jeder Baustelle, egal ob im Neubau oder in der Renovierung. Sie werden sicher nicht notwendig, weil die Trinkwasserleitungen dort untergebracht werden müssen, sondern sind einfach sinnvoll, weil sie Vorteile hinsichtlich der wirtschaftlichen Bauweise, dem Schallschutz und der modernen Badgestaltung bringen. Ringleitungen müssen aber nicht zwingend in einer Vorwand unterge­bracht werden, sondern können auch Unterputz oder im Fußbodenaufbau installiert werden. Dies hat sogar den Vorteil, dass innerhalb des Fußbodens keine Verbinder – wie in T-Stück-Installationen – benötigt werden.

IKZ-FACHPLANER: Bei den relevanten Kennwerten – Tabelle 1 – fehlt eine wesentliche Angabe: nämlich die Montagezeiten zu den Installationsarten. Gibt es dazu belastbare Werte oder wurden bereits Montagezeiten bei unterschiedlichen Objekten ermittelt?
Matthias Hemmersbach: Nein, aber sie lassen sich an einem einfachen Beispiel leicht nachvollziehen. Gehen wir einmal davon aus, dass der größte Anteil der Installationsarbeit, egal ob Sie nun eine T-Stück-, Durchschleif-Reihen-, oder Ringinstallation bevorzugen, durch das Einmessen, Herrichten und Verpressen von Verbindungsstellen entsteht. Für den Anschluss einer Wandscheibe und einem darunter installierten T-Stück wären vier Verbindungsstellen (drei am T-Stück und eines an der Wandscheibe) erforderlich. Bei der Verwendung einer Durchschleif-Wandscheibe sind es nur zwei. Darüber hinaus kann in der Ringinstallation durchgehend mit einem Rohrdurchmesser gearbeitet werden. Man kann also sagen: Je höher die Anzahl der Kalt- und Warmwasseranschlüsse im Bauvorhaben sind, desto mehr Zeit sparen Sie mit Durchschleif-Ringinstallationen.

 


Artikel teilen: