IKZ-HAUSTECHNIK, Ausgabe 4/2002, Seite 19ff.
SANITÄRTECHNIK
Alternative Trinkwasserbehandlung
Funktion - Wirkung - Gerätetechnik
Prof. Dr. rer. nat. Wolfgang Meck*
Von den Wasserversorgungsunternehmen (WVU) wird ein großer Aufwand betrieben, um Trinkwasser in der gemäß Trinkwasserverordnung geforderten Qualität bereitzustellen. Dennoch gibt es mancherorts Korrosions- oder Kalkprobleme in Sanitärinstallationen, was dazu führt, dass das Trinkwasser nachträglich behandelt werden muss.
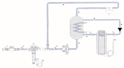
| Bild 1: Prinzipübersicht |
Dafür stehen inzwischen eine Vielzahl von prinzipiellen und technischen Lösungen zur Verfügung. An dieser Stelle steht nicht deren Vollständigkeit im Vordergrund, sondern die Nutzung von naturwissenschaftlichen Effekten und Wirkprinzipen, die eine "chemiefreie" Behandlung des Wassers ermöglichen. Hier spannt sich der Bogen von inzwischen schon als "klassisch" zu bezeichnenden Verfahren wie Umkehrosmose und Ultraviolettbehandlung über magnetische bis hin zu katalytischen Methoden (Bild 1).
Diese - trotz der notwendigen Einschränkungen - immerhin noch breite Palette von Technologien wirft sofort das Problem der Bezeichnung auf, die dem Inhalt gerecht wird. Die bislang übliche, "Physikalische Wasserbehandlung", trifft nicht mehr zu, weil damit einige ganz aktuelle Behandlungsmethoden nicht erfasst werden. Auch "Chemiefreie Wasserbehandlung" träfe nicht uneingeschränkt zu, weil wohlweislich bei den modernen Verfahren zwar keine Chemikalien zugesetzt werden, jedoch zweifelsfrei bei einigen chemische bzw. elektrochemische Reaktionen den Auslöser bilden. Wenn man nun noch berücksichtigt, dass sowohl bei der Ultraviolett- als auch bei der Ultraschallbehandlung mikrobiologische Vorgänge mit im Spiel sind, obwohl vordergründig physikalische Effekte genutzt werden, wird das Problem noch verschärft. Unter Berücksichtigung all dieser Aspekte ist letztendlich die Entscheidung für "Alternative Trinkwasserbehandlung" gefallen.
| Bild 2: Permanentmagnetisches Wasserbehandlungsgerät "permasolvent" (Quelle: permatrade). |
Sinn und Zweck einer Trinkwasserbehandlung, oder besser eigentlich "Trinkwassernachbehandlung", gemäß dem hier abgesteckten Feld, bestehen einmal in der Sicherung der Trinkwassergüte für den Verbraucher und zum anderen im Schutz der haustechnischen Wasserinstallation. Zwar sind die WVU verpflichtet, Wasser nach den Kriterien der TrinkwV bereitzustellen, jedoch endet ihre Zuständigkeit bekanntlich (noch) am Wasserzähler. Innerhalb des häuslichen (natürlich auch eines gewerblichen oder industriellen) Netzes unterliegt das Wasser verschiedenen Einflussgrößen, die seine Eigenschaften negativ beeinflussen und zu Schäden an Gesundheit und Installationsmaterial führen können.
Lange Zeit über hat man versucht, diesen Übeln ausschließlich mit Chemikalien zu begegnen: Desinfektionsmittel, Enthärter, Inhibitoren u.a.m. wurden und werden dem Wasser zugesetzt. Teilweise bedingt der Gebrauch einer Chemikalie das Hinzufügen einer anderen, um abträgliche "Nebenwirkungen" zu neutralisieren. Diese nur noch analytisch zu entwirrende Mixtur landet schließlich im Abwasser und verlangt immer höhere Aufwendungen für dessen Reinigung.
| Bild 3: Kinetik des Kalkausfalls (Quelle: Honeywell AG). |
Hinzu kommen die Probleme mit der regelmäßigen Wartung von Anlagen und der genauen Dosierung der Zusätze. Hier liegen die offensichtlichen Schwachstellen dieser Verfahren, trotz aller Fortschritte auf dem Gebiet der Regelungstechnik.
Jeder, der mit Sanitärtechnik befasst ist, kann Beispiele von total "verkeimten" Ionenaustauschern und unzulänglich arbeitenden Dosierungseinrichtungen benennen - und dagegen schützt auch kein oftmals vorhandenes DVGW-Prüfzeichen - wegen Vernachlässigung der Betriebsvorschriften.
Um Missverständnissen vorzubeugen: Es geht nicht um eine Verteufelung der chemischen Wasseraufbereitung, denn sie wird auch in Zukunft für bestimmte Verwendungszwecke des Wassers unabdingbar sein. Im Interesse unserer Umwelt (und auch des eigenen Geldbeutels) sollte jedoch weitestgehend auf den Einsatz von Chemikalien verzichtet und möglichst auf die hier vorgestellten Wirkprinzipien zurückgegriffen werden, jeweils abgestimmt auf das angestrebte Schutzziel.
| Bild 4: Kalk-Kohlensäure-Gleichgewichtskurve. |
Vordergründig sind als solche zu nennen: Legionellen-, Kalk- und Korrosionsschutz. Vorab sei klargestellt: Das ideale Gerät, das alle Schutzfunktionen gleichermaßen gut erfüllt, gibt es (noch) nicht. Der potenzielle Anwender muss deshalb Kompromisse eingehen oder auf Gerätekombinationen zurückgreifen.
| Bild 5: Vorgänge in einer Elektrolysezelle (schematisch). |
Einige Beispiele: Als Alternative zur thermischen Desinfektion von Warmwasseranlagen zum Schutz vor Legionellenbefall nach den DVGW-Arbeitsblättern W551/552 kämen beispielsweise eine Ultraviolettbehandlung oder der Einsatz von Ultraschall in Kombination mit einer extremen Feinfiltration (Nanofiltration) in Frage. Mit letzterer würden gleichzeitig - ähnlich der Umkehrosmose - die Härtebildner zurückgehalten. Was allerdings auf den ersten Blick positiv erscheint, kann sich schnell ins Gegenteil verkehren, weil das so behandelte Wasser (wegen der Verschiebung des Kalk-Kohlensäure-Gleichgewichtes) aggressiv reagieren könnte.
Einen Kompromiss zwischen Kalk- und Korrosionsschutz vergegenständlichen z.B. Geräte, die nach dem permanentmagnetischen oder dem galvanischen Prinzip arbeiten. Einen Kalkschutz nach den Wirksamkeitskriterien des DVGW W 512 werden diese Geräte schwerlich erzielen können, jedoch ist ihre Korrosionsschutzwirkung durch viele Referenzanlagen** bestätigt (Bild 2).
| Bild 6: "BiOSTAT 2000" von Judo. |
Die Messlatte
Soll der Kalkschutz der Anlage im Vordergrund stehen, dann ist die Messlatte gegeben: das DVGW-Arbeitsblatt W 512! Darin heißt es: "Als Wasserbehandlungsanlagen im Sinne dieses Arbeitsblattes gelten Anlagen mit den zum System gehörenden technischen Einrichtungen und alle Mittel, die die Verhinderung bzw. nachhaltige Verringerung der Steinbildung zum Ziel haben." Mindestens 80% Wirksamkeit (Wirksamkeitsfaktor fw> 0,8) bei der Verminderung der Kalksteinbildung gegenüber dem unbehandelten Wasser sind gefordert! Der Wirksamkeitsfaktor fw ergibt sich aus:
![]()
In der Praxis vereinfacht man die Berechnung dahingehend, dass die Konzentrationen der Härtebildner Kalzium Ca und Magnesium Mg zusammengefasst werden und der Kalkgehalt z.B. als Kalziumkarbonat CaCO3 berechnet wird, um Aussagen zum Kalk-Kohlensäure-Gleichgewicht treffen zu können:

Gebräuchlich ist auch noch die Berechnung des Kalkgehaltes als Kalziumoxid CaO, weil 10 mg · l-1 CaO definitionsgemäß 1°dH entsprechen. Zur besseren Veranschaulichung sei das Erfurter Wasser mit dem Härtebereich IV herangezogen.
Die (im eigenen Labor bestätigte) Wasseranalyse des WVU enthält u.a. folgende Werte:
l Ca2+ 4,48 mmol · l-1,
l Mg2+ 1,65 mmol · l-1,
l SO42- 2,80 mmol · l-1
Somit beträgt die Konzentration der Härtebildner insgesamt 6,13mmol · l-1.
Für die weitere Auswertung werden die molaren Massen M benötigt, die sich aus der Summe der relativen Atommassen aus dem Periodensystem der Elemente ergeben (Ca = 40, O = 16, C = 12).
Demzufolge sind: MCaO = 46 g · mol-1 = 46 mg · mmol-1; MCaCO3 = 100 mg · mmol-1.
Daraus folgt die Gesamthärte:
![]()
| Bild 7: Edelstahl-Rundbürste (Quelle: Judo). |
Als CaCO3 berechnet wären 6,13 mmol · l-1 · 100 mg · mmol-1 = 613 mg · l-1 enthalten. Bei 20 °C sind jedoch nur 14 mg · l-1 CaCO3 löslich. Daraus folgt, dass der Kalk in der löslichen Form von Ca(HCO3)2 vorliegt, dessen Löslichkeit 850 mg · l-1 beträgt.
Noch eine weitere Berechnung ist notwendig. Die 2,80 mmol · l-1 Sulfationen können genauso viele Kalziumionen zu Kalziumsulfat (CaSO4 - Gips) binden. Es stehen also "nur" 3,33 mmol · l-1 Härtebildner für die Kalkbildung zur Verfügung. Nach dem obigen Beispiel ergeben sich daraus:
![]()
Deren Anteil beträgt damit 54,2% der Gesamthärte. Das ist wichtig für den Einsatz der weiter unten beschriebenen und ähnlich funktionierender Geräte, weil bei einem Karbonathärteanteil unter 50% deren Wirksamkeit stark beeinträchtigt ist, wie es die Ergebnisse einer Testserie in Bad Langensalza zeigten.
Es bedarf keiner besonderen hellseherischen Fähigkeiten für die Aussage, dass sich Geräte - unabhängig von ihrem Wirkprinzip - die nicht die Kriterien des zugrunde liegenden Testverfahrens zum Kalkschutz erfüllen, nur schwerlich am Markt behaupten werden. Daran wird auch die vernehmbare Kritik an der Praxisferne der Prüfung nichts ändern (u.a. Verwendung eines "synthetischen" Wassers, drucklose Anlage, relativ hohe Heizflächenbelastung). Auf jeden Fall wird das erfolgreiche Abschneiden beim Testzyklus eine Voraussetzung für das Vergeben des so begehrten DVGW-Prüfzeichens sein. Leider wird durch die Bewerbung einzelner Produkte teilweise der Eindruck erweckt, dass ein DVGW-Zertifikat nach W 512 gleichbedeutend dem DVGW-Prüfzeichen sei. Dem ist natürlich nicht so, denn dazu sind noch weitere Prüfungen notwendig.
| Bild 8: Abstreifen der Impfkristalle (Quelle: Judo). |
Die Prinziplösung
Die Prinziplösung für Geräte zur Verminderung der Kalksteinbildung, die sich durch verschiedene Wirkeffekte und -prinzipe realisieren lässt, kann auf einen einfach klingenden Nenner gebracht werden: Das Kalk-Kohlensäure-Gleichgewicht muss an einem definierten Ort im Installationssystem dahingehend verschoben werden, dass in einer kurzen Zeitspanne viele Kristallkerne entstehen, an denen sich weitere Kalziumkarbonatmoleküle anlagern können. Dieser Prozess wird statistisch gesehen bevorzugt, weil die Oberfläche aller Kristallite zusammen größer als die der vorhandenen Wandungsflächen ist. (Auf den Begriff "Kristallkeim" aus der Kristallbildungstheorie wird hier bewusst verzichtet, weil "Keim" in Verbindung mit dem Wasser negativ besetzt ist.) An anderer Stelle wurde für derartige Geräte die zutreffende Bezeichnung "Kristallkeimbildungs-Maschine" geprägt [1].
Die einfachste Möglichkeit, das Gleichgewicht durch Temperaturerhöhung im erwünschten Sinne zu beeinflussen, scheidet aus, weil sich der Kalk gerade dort abscheiden würde, wo er vermieden werden soll: Auf Heizflächen sowie an Behälter- und/oder Rohrwandungen (Bild 3). Das führt bekanntlich zu enormen Energieverlusten und zu einem hohen Wartungsaufwand.
| Bild 9: "AQA total" von BWT Wassertechnik. |
Die neue Gerätegeneration
Eine andere Problemlösung wäre die pH-Wert-Anhebung. Zu jedem "Gleichgewichtswasser" gehört ein entsprechender pH-Wert. Grob formuliert: Je niedriger der "Gleichgewichts-pH-Wert", desto höher kann die Karbonathärte sein, wobei der Kalk hauptsächlich gelöst als Hydrogenkarbonat vorliegt. Wird nun der pH-Wert (zur Erinnerung: negativer Logarithmus der Wasserstoffionen-Konzentration) lokal erhöht, so wird das Wasser kalk-(calzit-)abscheidend, es bilden sich die erwünschten Impfkristalle.
| Bild 10: Kartusche des AQA, Nanokristallbildung (Quelle: BWT Wassertechnik). |
Das geschieht immer dann, wenn durch das Wasser ein elektrischer Strom fließt, der es elektrolytisch zersetzt. An der Kathode werden Wasserstoffionen H+ entladen, folglich sinkt in ihrer Umgebung deren Konzentration, während Hydroxidionen OH- im Überschuss vorliegen (pH-Wert-Anhebung). An der Anode entsteht primär atomarer (und deshalb besonders reaktionsfähiger) Sauerstoff, womit ein gewisses Gefährdungspotenzial durch Folgereaktionen (Knallgasbildung, Elektrodenabbrand und ggf. CO2-Produktion, Nitrit-, Chlorit- und Chlorgasbildung) nicht gänzlich auszuschließen ist (Bild 5).
Als technische Lösungen liegen die Geräte "AQA total" ("AQA total - 2500" auch mit DVGW-Prüfzeichen) von BWT, "permasolvent - domo" von perma-trade und "BiOSTAT 2000" von JUDO vor, alle nach DVGW W 512 zertifiziert und für den Einbau in die Kaltwasserzuleitung konzipiert. Sie sind mikroelektronisch gesteuert, sodass in Abhängigkeit von Durchfluss und Beschaffenheit des Wassers die Stromimpulse für eine optimale Behandlung formiert werden.
Kernstück des BiOSTAT 2000 (Bild 6) ist eine als Kathode (Minuspol) geschaltete Edelstahl-Rundbürste (Bild 7). Als Anode (Pluspol) dient ein platinierter Titandraht. Sobald Wasser fließt, wird zwischen beide eine pulsierende Gleichspannung angelegt, sodass auch ein elektrischer Strom fließt. An den elastischen Drähten der Rundbürste - wo auch die pH-Wert-Anhebung erfolgt - lagert sich der Kalk in kristalliner Form als Kalziumkarbonat ab. Durch einen rotierenden Abstreifer werden die Kristalle dann abgesprengt (Bild 8). Ein Austausch der Wirkeinheit ist deshalb nicht notwendig. Größere Kalkgebilde sinken auf den Boden des Behandlungsraumes und können über ein Spülventil problemlos entfernt werden (gleichzeitig eine Funktionskontrolle), die Mikrokristalle bleiben in der Schwebe und bilden die Impfkristalle für die weitere Kalkanlagerung.
| Bild 11: Biomineralische Impfkristallbildung (Quelle: Honeywell AG). |
Da der Austrag über das Spülventil minimal ist, bleibt der Kalk im Trinkwasser. Es erfolgt deshalb auch keine Enthärtung, sondern der Kalk wird in eine stabile, für die Installation ungefährliche Modifikation umgewandelt. Man spricht in diesem Zusammenhang von einer Härtestabilisierung. Das gilt gleichermaßen auch für die nachfolgend beschriebenen Geräte.
Im AQA total (Bild 9) und im "domo" übernimmt die Rolle der "Kristallkeimbildungs-Maschine" (der Hersteller spricht von "Nanokristallen") eine mit feinkörnigem Sand (nichtleitend) und Graphitkugeln (leitend) gefüllte Kartusche in Form eines Polypropylenkäfigs (Bild 10). An großflächige Elektroden wird ebenfalls eine pulsierende Gleichspannung gelegt, wodurch das leitende Material wechselseitig positiv und negativ aufgeladen wird. An der negativ geladenen Oberfläche (Kathode, pH-Wert-Anhebung) lagert sich der Kalk ab, beim Umpolen werden die Impfkristalle (Nanokristalle) abgesprengt. Die Kartusche muss - u.a. in Abhängigkeit von Wasserhärte und Durchfluss - nach einer bestimmten Zeit gewechselt werden.
Eine weiterhin praktizierte Problemlösung nimmt Anleihen von der Biologie: Die Biomineralisierung. Es ist bekannt, dass biologische Systeme gezielt Kalkgebilde aufbauen können (Skelette, Gebisse, Schalen, Gehäuse, Panzer u.v.a.m.). Dafür bedarf es (neben den genetischen Informationen) bestimmter Oberflächeneigenschaften, damit sich Calzitkristalle in der gewünschten Orientierung bilden können. Basis für die technische Umsetzung ist ein oberflächenaktiviertes Katalysatormaterial in Granulatform (strukturell ähnlich dem in einem Ionenaustauscher), von dem die heterogen gebildeten Kristallite mechanisch durch Reibung abgelöst werden und somit als Impfkristalle im zu behandelnden Wasser zur Verfügung stehen (Bild 11). Damit die Wasserqualität nicht negativ beeinflusst wird, müssen die Kunstharzkügelchen chemisch inert und mechanisch abriebfest sein.
| Bild 12: "kaltecpro" (Quelle: Honeywell AG). |
Die technischen Lösungen werden repräsentiert durch den "kaltecpro" (Bild 12) von HONEYWELL-BRAUKMANN und den "OCC - watercat" (Bild 13) der Firma OC-Wassertechnik. Diese Geräte sind für den Einbau in die Warmwasserzirkulation vorgesehen ("Kaltwasservarianten" stehen seit kurzer Zeit ebenfalls zur Verfügung), weil - aus technischer Sicht - über 90% der Kalkschäden im Warmwasserbereich anzutreffen sind und weil - naturwissenschaftlich gesehen - Reaktionsenergie für die Bildung der Kristallkerne benötigt und der Ablauf katalytischer Reaktionen mit steigender Temperatur beschleunigt wird.
| Bild 13: "OCC-watercat" (Quelle: OC-Wassertechnik GmbH). |
Als Reaktionsgefäß dient ein Edelstahlbehälter, in dem sich neben dem Katalysator- noch ein Filtergranulat befindet, um das Ausspülen des aktivierten Materials zu verhindern. Über ein Tauchrohr wird das unbehandelte Wasser zugeführt, sodass ein Wirbelbett entsteht, das für den Abrieb der Kristallkerne sorgt, die dann als Impfkristalle in der gesamten Warmwasserinstallation zur Verfügung stehen und auch den Mischwasserbereich mit erfassen (Bild 14). Auch hier ist nach einer gewissen Laufzeit ein Wechsel der Wirkeinheit notwendig. Außerdem muss wegen der enorm großen Kunststoffoberfläche des Granulats entsprechend W 551/552 thermisch desinfiziert werden. Das kann über die "Legionellenschaltung" der Hausinstallation bzw. - falls diese nicht vorhanden - geräteintern geschehen.
| Bild 14: Katalytische Wirkeinheit. |
Fazit
Aufgrund der Vorbehalte einiger Hersteller gegen den Testzyklus des DVGW, wurden am Fachbereich Versorgungstechnik der Erfurter Fachhochschule in den zurückliegenden Jahren die Wirksamkeit verschiedener Geräte untersucht. Dafür standen zwei Prüfstände zur Verfügung, die in Anlehnung an DVGW - W 512 konzipiert und betrieben wurden. Sie bestehen jeweils aus zwei identischen Prüfstrecken, von denen eine mit dem zu testenden Gerät betrieben wird, während die andere ohne Behandlung zum Vergleich dient.
Im Technologie Zentrum Wasser (TZW) in Karlsruhe werden parallel auf zwei Prüfständen jeweils zwei Geräte gleichen Typs gleichzeitig über einen Zeitraum von 21 Tagen getestet, wobei ca. 11m3 Wasser durch die Anlagen laufen!
Abweichend vom DVGW-Prüfverfahren sind beide Anlagen an die öffentliche Wasserversorgung angeschlossen, sodass die Wirksamkeit der Testgeräte gegenüber der Erfurter Wasserqualität (> 34° dH, "Gleichgewichts"-pH-Wert 7,16 bei 11,3°C) festgestellt werden konnte.Weiterhin mussten Laufzeit der Versuche und Wasserdurchsatz verändert werden, weil die im Arbeitsblatt W512 vorgeschriebenen 21 Tage mit einem täglichen Durchfluss von 130 Litern (bei zwei parallelen Strecken und notwendiger Spülung der Anlagen zwischen den einzelnen Tests fast 6 m3 Wasser) den zeitlichen Rahmen einer Diplomarbeit gesprengt hätten und die Kosten unvertretbar hoch geworden wären.
| Bild 15: Einbau in die Warmwasserinstallation (Quelle: Honeywell AG). |
Der Prüfstand für die katalytisch wirkenden Geräte ist so in seiner Konfiguration vom DVGW gar nicht vorgesehen, weil hierbei in der Warmwasserzirkulation geprüft werden muss. Um trotzdem zu reproduzierbaren Ergebnissen zu gelangen, mussten zahlreiche Blindversuche gefahren werden, um ein Zeitregime für den Wasserzufluss und vollständigen -wechsel in den Boilern zu finden sowie die Gleichwertigkeit beider Strecken bezüglich der Kalkablagerungen zu prüfen. Im Test waren (und sind auch weiterhin) die oben beschriebenen vier Geräte, die zufällig aus der laufenden Serie entnommen wurden. Auch wenn die Ergebnisse nach jeweils sechs Messungen pro Gerät noch nicht statistisch gesichert sind, kann die Aussage getroffen werden, dass alle ihre Wirksamkeit bewiesen haben. Während bei den Kaltwassergeräten die Wirksamkeitsfaktoren zwischen 0,62 und 0,78 schwankten, wurden im Warmwasserbereich Werte zwischen 0,81 und 0,85 erzielt. Somit kann den Prüflingen ihre Praxistauglichkeit bescheinigt werden.
Internetinformationen: |
*) Prof. Dr. rer. nat. Wolfgang Meck, Fachhochschule Erfurt, Fachbereich Versorgungstechnik
**) siehe Beitrag "Kurbehandlung für ein Heilbad", IKZ-HAUSTECHNIK Heft 22/01, Seite 54 ff.
L i t e r a t u r :
[1] R. WÖGERBAUER, Vortrag, Haus der Technik Essen, Nov. 1998
[Zurück] [Übersicht] [www.ikz.de]














